27425:中古戸建 中古一戸建て
| 価格 | 10,980万円 |
|---|---|
| 所在地 | 西宮市甲陽園西山町5-7 |
| 交通 | 阪急甲陽線 甲陽園駅まで 徒歩3分 |
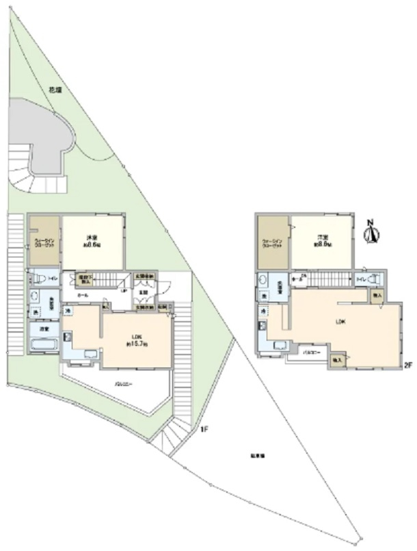
| 間取 | 3LDK |
| 土地面積 | 264.51m²(80.01坪) |
| 建物面積 | 137.25m²(41.51坪) |
| 私道面積 | - |
| 築年月 | 2011/07 |
| 学区 | 小学校区:甲陽園小学校 560m 中学校区:大社中学校 1,000m |
| 建物構造 | 木造 |
|---|---|
| 階建 | 地上2階建 |
| 建ぺい率 | 40% |
| 容積率 | 100% |
| 地目 | 宅地 |
| 用途地域 | 第一種低層住居専用地域 |
| 土地権利 | 所有権 |
| 取引態様 | 仲介 |
| 引渡時期 | 相談 |
| セットバック | |
|---|---|
| 接道 | 南西 5.2m(幅員) 公道 22.96m(接面) |
| 諸費用 | |
| 他法条例 | |
| 建築確認番号 | |
| 取引条件有効期限 | 令和07年12月29日 |
特色
南道路、南向き(南東向きと南西向きを含む)、陽当たり良好、眺望良好、駐車場、駐車場3台分以上あり、駅近物件(徒歩5分以内)、大手ハウスメーカー施工
コメント
◆南西向き陽当たり通風良好!
◆南ひな壇立地で西宮市内と海を望む眺望あり
◆土地面積約80.01坪あり
◆2011年にセキスイハウス施工で建物面積約41.51坪の2LDK+2LDKです
◆1階の天井高は約2.5mあり/LDKは床暖房付/アルミ樹脂複合サッシ/お庭でバーべキューも出来ます
◆カースペースは3台分あり
◆阪急「甲陽園駅」徒歩3分
◆阪急オアシス甲陽園店・徒歩3分/いかりスーパー甲陽園店・徒歩4分/ファミリーマート甲陽園駅前店。徒歩5分
周辺地図
位置情報に関するご注意:おおよその場所であり、正確ではない場合があります。










