27465:中古戸建 中古一戸建て
| 価格 | 14,300万円 |
|---|---|
| 所在地 | 西宮市満池谷町7-33 |
| 交通 | 阪急神戸線 夙川駅まで 徒歩15分 JR東海道線 さくら夙川駅まで 徒歩16分 阪急甲陽線 苦楽園口駅まで 徒歩13分 |
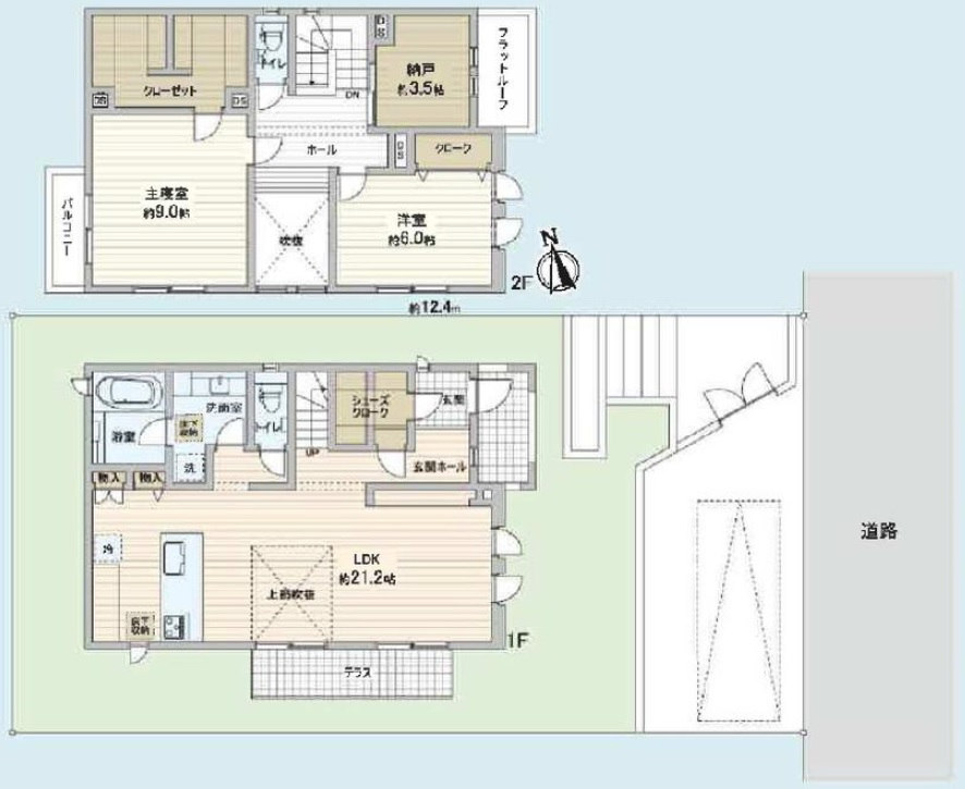
| 間取 | 2SLDK |
| 土地面積 | 169.72m²(51.34坪) |
| 建物面積 | 109.3m²(33.06坪) |
| 私道面積 | - |
| 築年月 | 2015/03 |
| 学区 | 小学校区:大社小学校 160m 中学校区:大社中学校 1,400m |
| 建物構造 | 木造 |
|---|---|
| 階建 | 地上2階建 |
| 建ぺい率 | 40% |
| 容積率 | 100% |
| 地目 | 宅地 |
| 用途地域 | 第一種低層住居専用地域 |
| 土地権利 | 所有権 |
| 取引態様 | 仲介 |
| 引渡時期 | 相談 |
| セットバック | |
|---|---|
| 接道 | 東 4.3m(幅員) 公道 9.4m(接面) |
| 諸費用 | |
| 他法条例 | |
| 建築確認番号 | |
| 取引条件有効期限 | 令和07年12月29日 |
特色
陽当たり良好、駐車場あり、3沿線利用可、大手ハウスメーカー施工
コメント
◆東向き陽当たり良好!
◆土地面積約51.34坪あり
◆2015年3月に三井ホーム(株)施工の美宅です
◆建物面積33.06坪の2SLDKです
◆LD の上部に吹き抜けあり/2階ホールに作業スペースあり/主寝室約9帖は大型のウォークインクローゼットあり/玄関に大型のシューズインクローゼットあり
/駐車場あり
◆阪急「夙川駅」徒歩15分・「苦楽園口駅」徒歩13分/JR「さくら夙川駅」徒歩16分
◆西田公園・徒歩5分/コープ夙川・徒歩9分
◆人気の大社小学校・大社中学校区です
周辺地図
位置情報に関するご注意:おおよその場所であり、正確ではない場合があります。







