27878:中古マンション ロイヤル芦屋川(三条南町)
| 価格 | 4,080万円 |
|---|---|
| 所在地 | 芦屋市三条南町5-10 |
| 交通 | JR東海道線 甲南山手駅まで 徒歩6分 阪急神戸線 芦屋川駅まで 徒歩11分 阪神本線 阪神芦屋駅まで 徒歩15分 |
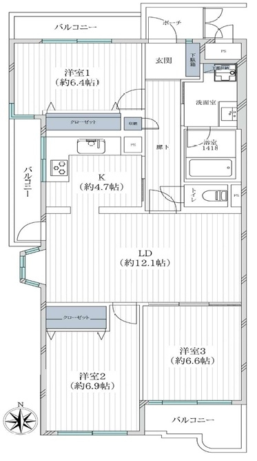
| 間取 | 3LDK |
| 総戸数 | 26戸 |
| 専有面積 | 79.94m²(24.18坪) |
| バルコニ面積 | 10.89m² |
| 築年月 | 1985/06 |
| 学区 | 小学校区:山手小学校 1,300m 中学校区:山手中学校 1,000m |
| 建物構造 | 鉄筋コンクリート造 |
|---|---|
| 所在階 | 1階/地上3階 地下1階建 |
| 用途地域 | 第一種中高層住居専用地域 |
| 土地権利 | 所有権 |
| 取引態様 | 仲介 |
| 引渡時期 | 即時 |
| 管理形態 | 全部委託 |
|---|---|
| 管理費 | 19,190円 |
| 修繕積立費 | 11,910円 |
| 駐車場 | 14,000円 |
| 諸費用 | |
| 他法条例 | |
| 取引条件有効期限 | 令和07年12月29日 |
特色
南向き、角部屋、陽当たり良好、リフォーム済、リノベーション済、駐車場・空き有り、駅徒歩10分以内、3沿線利用可
コメント
◆南向き南西北角部屋で陽当たり通風良好!
◆白いタイル貼りの外観です
◆専有面積79.94㎡の3LDKです
◆LDKは約16.8帖あり/全居室に窓あり/オートロック付
◆2025年7月室内リノベーション済:システムキッチン交換(浄水器一体水栓・食洗機付)/ユニットバス交換(暖房乾燥機付)/洗面化粧台交換/防水パン交換/トイレ交換(温水洗浄便座付)和室→洋室変更/ダウンライト新設/建具交換/フローリング張替/クロス張替/CF張替/ハウスクリーニング/等
◆敷地内駐車場・空き有り14,000円~16,000円/月
◆JR「甲南山手駅」徒歩6分・「芦屋駅」徒歩15分/阪急「芦屋川駅」徒歩11分/阪神「芦屋駅」徒歩15分
◆三条公園・徒歩4分/セルバ甲南山手(関西スーパーや専門店街あり)・徒歩6分/ファミリーマート甲南山手店・徒歩6分/前田公園・徒歩6分
周辺地図
位置情報に関するご注意:おおよその場所であり、正確ではない場合があります。







