27953:中古マンション エスリード苦楽園老松町
| 価格 | 3,780万円 |
|---|---|
| 所在地 | 西宮市老松町13-24 |
| 交通 | 阪急甲陽線 苦楽園口駅まで 徒歩16分 |
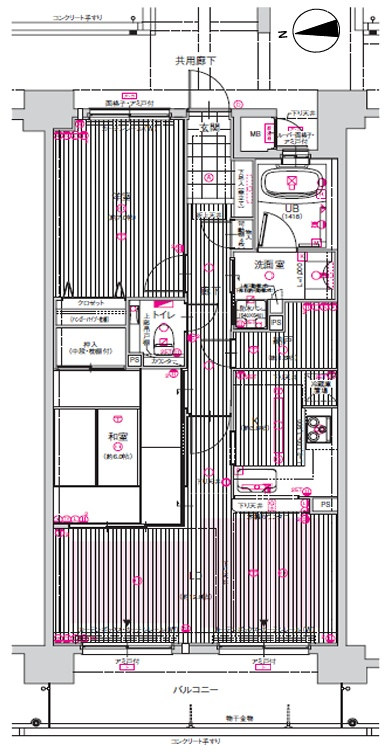
| 間取 | 2LDK |
| 総戸数 | 88戸 |
| 専有面積 | 68.26m²(20.64坪) |
| バルコニ面積 | 10.8m² |
| 築年月 | 2010/02 |
| 学区 | 小学校区:北夙川小学校 1,120m 中学校区:苦楽園中学校 1,680m |
| 建物構造 | 鉄筋コンクリート造 |
|---|---|
| 所在階 | 7階/地上7階 地下1階建 |
| 用途地域 | 第一種中高層住居専用地域 |
| 土地権利 | 所有権 |
| 取引態様 | 仲介 |
| 引渡時期 | 即時 |
| 管理形態 | 全部委託 |
|---|---|
| 管理費 | 7,200円 |
| 修繕積立費 | 9,400円 |
| 駐車場 | 8,000円 |
| 諸費用 | |
| 他法条例 | |
| 取引条件有効期限 | 令和07年12月29日 |
特色
駐車場、陽当たり良好、ペット飼育可、リフォーム済、駐車場・空き有り
コメント
◆西向き陽当たり良好!/最上階・7階のお部屋で眺望あり♪
◆2010年(平成22年)2月築で外壁がタイル貼りのマンションです
◆専有面積68.26㎡の2S LDKです
◆L字型の屋い麺キッチン/浴室は窓あり
◆2025年9月末リフォーム完了渡し:フローリング上貼り/クロス張替/キッチン水栓交換/ガラストップコンロ交換/等
◆敷地内駐車場・空きあり(8,000円~14,000円/月)
◆ペット飼育可(規約あり)
◆阪急「苦楽園口駅」徒歩16分
◆苦楽園南公園・徒歩1分/松谷公園・徒歩4分/関西スーパー苦楽園店・徒歩5分/コープ苦楽園・徒歩6分/ニシイチドラッグ・徒歩6分/樋之池公園・徒歩7分
◆人気の北夙川小学校区です
周辺地図
位置情報に関するご注意:おおよその場所であり、正確ではない場合があります。








