28077:中古戸建 中古一戸建て
| 価格 | 5,580万円 |
|---|---|
| 所在地 | 西宮市苦楽園六番町5-43 |
| 交通 | JR東海道線 JR芦屋駅まで バス12分 停歩2分 阪急神戸線 夙川駅まで バス13分 停歩2分 阪急甲陽線 苦楽園口駅まで バス10分 停歩2分 |
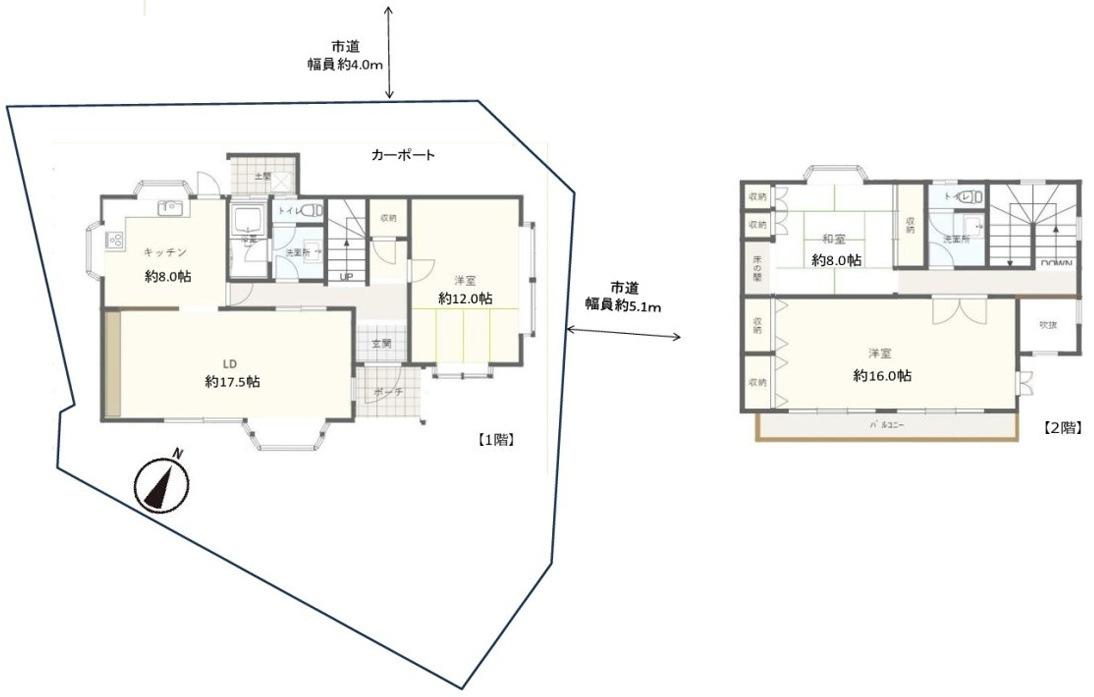
| 間取 | 3LDK |
| 土地面積 | 261.85m²(79.2坪) |
| 建物面積 | 152.07m²(46坪) |
| 私道面積 | |
| 築年月 | 1987/12 |
| 学区 | 小学校区:苦楽園小学校 1,300m 中学校区:苦楽園中学校 1,300m |
| 建物構造 | 木造 |
|---|---|
| 階建 | 地上2階建 |
| 建ぺい率 | 40% |
| 容積率 | 100% |
| 地目 | 宅地 |
| 用途地域 | 第一種低層住居専用地域 |
| 土地権利 | 所有権 |
| 取引態様 | 仲介 |
| 引渡時期 | 即時 |
| セットバック | |
|---|---|
| 接道 | 東 5.1m(幅員) 公道 北 4m(幅員) 公道 |
| 諸費用 | |
| 他法条例 | |
| 建築確認番号 | |
| 取引条件有効期限 | 令和07年12月29日 |
特色
角家、陽当たり良好、眺望良好、駐車場あり、3沿線利用可
コメント
◆北東角家で陽当たり通風良好!
◆土地面積約79.2坪あり
◆建物面積約46.0坪の3LDKです
◆明るい南向きのお庭あり/南ひな壇立地で大阪湾一望の眺望あり♪
◆駐車場あり
◆JR「芦屋駅」バス12分「苦楽園五番町」バス停徒歩2分/阪急「夙川駅」バス13分「苦楽園五番町」バス停徒歩2分/阪急「苦楽園口駅」バス10分「苦楽園五番町」バス停徒歩2分
◆苦楽園六番公園・徒歩1分/関西スーパー苦楽園店・徒歩11分/セブンイレブン西宮樋之池町店・徒歩11分/コープ苦楽園・徒歩15分
周辺地図
位置情報に関するご注意:おおよその場所であり、正確ではない場合があります。























