28208:中古戸建 中古一戸建て
| 価格 | 5,200万円 |
|---|---|
| 所在地 | 西宮市神園町10-32 |
| 交通 | 阪急甲陽線 甲陽園駅まで 徒歩6分 |
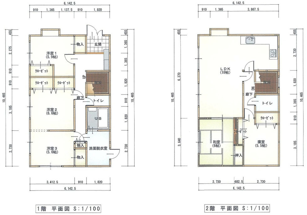
| 間取 | 5LDK |
| 土地面積 | 183.33m²(55.45坪) |
| 建物面積 | 141.3m²(42.74坪) |
| 私道面積 | - |
| 築年月 | 1988/07 |
| 学区 | 小学校区:甲陽園小学校 700m 中学校区:大社中学校 850m |
| 建物構造 | 木造 |
|---|---|
| 階建 | 地上2階建 |
| 建ぺい率 | 60% |
| 容積率 | 200% |
| 地目 | 宅地 |
| 用途地域 | 第一種中高層住居専用地域 |
| 土地権利 | 所有権 |
| 取引態様 | 仲介 |
| 引渡時期 | 即時 |
| セットバック | |
|---|---|
| 接道 | 北西 4m(幅員) 公道 |
| 諸費用 | |
| 他法条例 | |
| 建築確認番号 | |
| 取引条件有効期限 | 令和07年12月29日 |
特色
陽当たり良好、駐車場あり、駅徒歩10分以内
コメント
◆陽当たり良好!
◆土地面積約55.45坪あり
◆建物面積約42.74坪の5LDKです
◆LDKは2面採光で明るいです/全居室に窓と収納あり
◆駐車場あり
◆阪急「甲陽園駅」徒歩6分
◆阪急オアシス甲陽園店・徒歩5分/いかりスーパー甲陽園店・徒歩6分/ファミリーマート甲陽園駅前店・徒歩7分
周辺地図
位置情報に関するご注意:おおよその場所であり、正確ではない場合があります。





